previous listing

next listing



house for sale

670 Av. Grosvenor
Westmount, H3Y2S8

MLS # 25089503

Discover this sunlight-filled semi-detached gem located in
one of Westmount's most desirable pockets. Meticulously
maintained and extensively renovated, 670 Grosvenor offers
the perfect blend of classic architecture and high-end
modern convenience. This home is truly move-in ready.

A Main Floor Built for Light & Comfort
The heart of the home is a spacious, airy floor plan
featuring new hardwood flooring (2017) and an abundance of
natural light.

Gourmet Kitchen: Fully redone in 2012 by the previous
owner, now featuring a new sliding door and replaced
windows (2024).

Outdoor Oasis: Step out onto a professionally redone deck
(2022) designed for ultimate privacy, complete with a new
ceiling fan for summer evenings, overlooking a landscaped
private backyard (2023).

Sunroom: Features freshly redone insulation (2025),
ensuring this bright space remains comfortable year-round.

The Ultimate Basement & Wellness Retreat
The lower level was fully renovated in 2017, transforming
it into a versatile living suite:

Wellness: A custom new sauna and a fully redone bathroom.

Storage: A dedicated cold room with updated insulation
(2025).

Modern Comforts: Brand new hot water tank (2025) and
central A/C (2020).

Exterior entrance: In 2023, $30,000 was invested in a new
entrance walkway and driveway repairs.

Parking: Rare and coveted 2-car parking in the heart of
Westmount.

Roof: A new roof (2018)

Hunter Douglas blinds installed throughout the home.

Quick Specs & Renovations

Roof: 2018

Windows/Doors: Major replacements in 2024

HVAC: Central A/C (2020)

Bathrooms: 2 Full + 1 Powder Room fully redone (2017);
Master Ensuite partially redone with original marble.

Servitudes: Please refer to the certificate of location
(Section 2.8).

A new certificate of location has been ordered.

Wolf stove, fridge, dishwasher, washer, dryer, HunterDouglas blinds

$ 2,670,000
Living area
255 m2
Land area
383 m2
Bedrooms
5
Bathrooms
3
print this listing
  • Driveway: Asphalt
  • Heating system: Electric baseboard units
  • Water supply: Municipality
  • Heating energy: Electricity
  • Equipment available: Central air conditioning
  • Hearth stove: Gaz fireplace
  • Proximity: Highway, Cegep, Daycare centre, Hospital, Elementary school, High school, Public transport, University
  • Basement: 6 feet and over, Finished basement
  • Parking: Outdoor
  • Sewage system: Municipal sewer
  • Zoning: Residential
  • Municipal Taxes: $12,424 / year
  • School taxes: $1,315 / year

Rooms

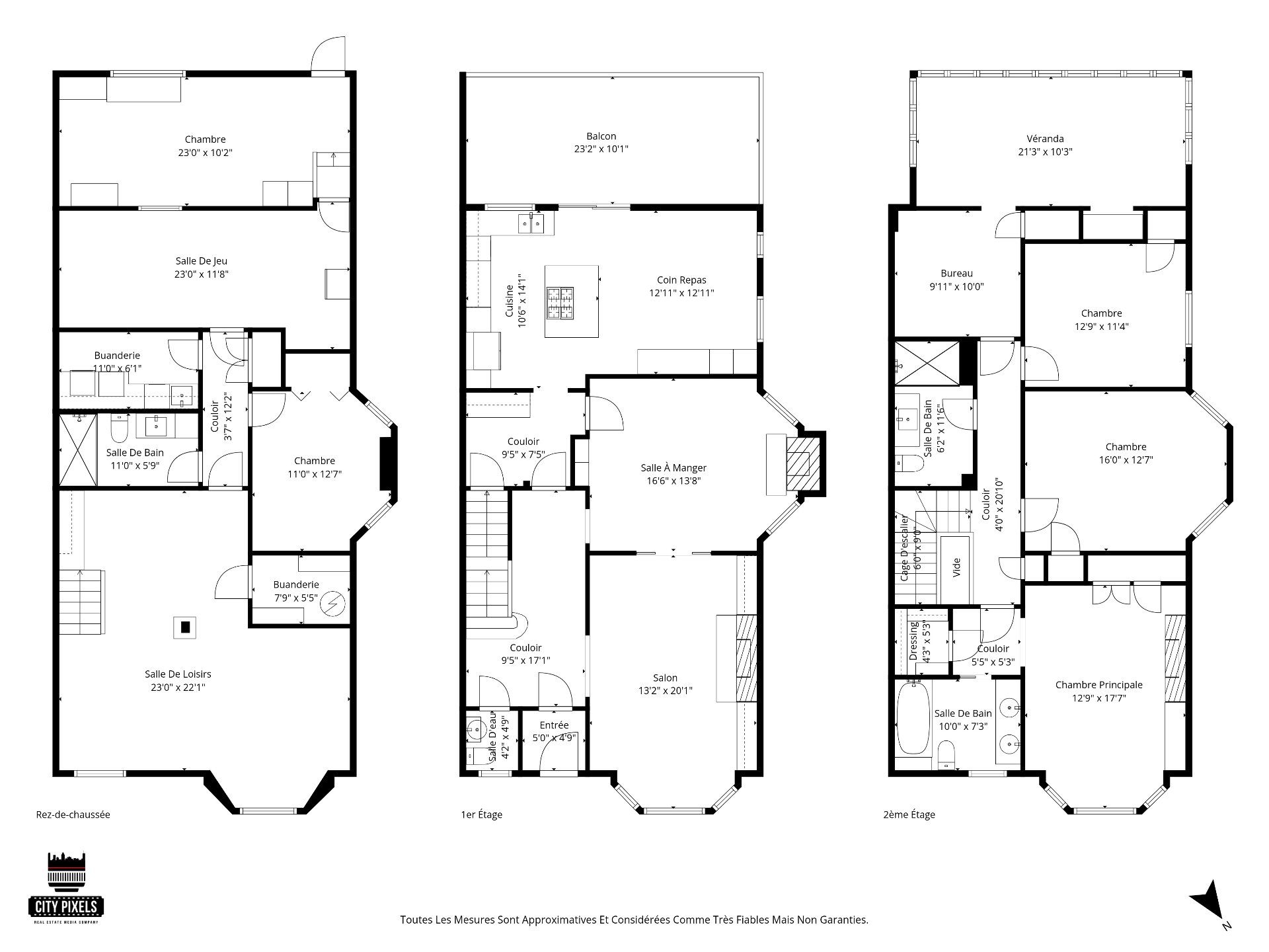
Room Level Dimensions Flooring Description
Hallway First floor 9.6x17.3 P Wood
Living room First floor 13.1x19.1 P Wood gas fireplace" "25089503
Kitchen First floor 22.7x13.11 P Wood
Washroom First floor 4.6x4.2 P Ceramic tiles
Master bedroom 2nd floor 12.6x17.8 P Wood
Bathroom 2nd floor 9.8x6.9 P Ceramic tiles Ensuite" "25089503
Bedroom 2nd floor 11x13.2 P Wood
Bedroom 2nd floor 10.1x9.11 P Wood
Den 2nd floor 22.8x9.6 P Wood
Bathroom 2nd floor 5.10x11 P Ceramic tiles
Playroom Basement 22.9x22.2 P Floating floor
Bedroom Basement 10.8x13 P Floating floor
Bathroom Basement 10.9x5.2 P Ceramic tiles
Laundry room Basement 11x6.1 P Ceramic tiles
Playroom Basement 23x11.8 P Floating floor
Storage Basement 23x10.2 P Concrete

contact agent

Residential Real Estate Broker

Xinfa Wen 文新发


Residential & Commercial Real Estate Broker

Mark Reiner

438-725-1998
xinfa@luxurymtl.com
Send